Structural Drawing Services
Standardized Structural Drawing Services in Lahore For Your Firm!
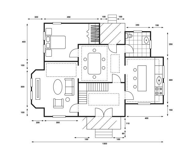
Structural Drawings
At Dream House Construction and Construction, we recognize that solid foundations and specific structural layouts are the bedrock of every successful building and construction task. Our Structural Illustrations service guarantees that your vision is translated into a meticulously detailed plan that overviews every building phase with accuracy and clarity.
Structural Drawings are vital in-depth plans that describe the framework of your building, including columns, light beams, structures, and other architectural components. These illustrations are critical for ensuring your building and construction job’s safety, security, and integrity.
Why Choose Dream House Construction for Structural Drawings?
- Expertise: Our group of knowledgeable architects and engineers specialize in producing comprehensive Architectural Drawings that meet regional building ordinances and guidelines.
- Precision: We highlight accuracy in every detail, guaranteeing that our Architectural Drawings are a dependable guide for specialists and home builders throughout construction.
- Customization: Whether you’re planning a residential commercial or commercial task in Lake City – Bahria Town, Wapda Town Lahore, our drawings are tailored to match your specific requirements and task range.
- Compliance: We adhere to market standards and regulations, ensuring that our Architectural Illustrations promote smooth authorization procedures from relevant authorities.
